Properti / Detail Properti
Spesifikasi Unit
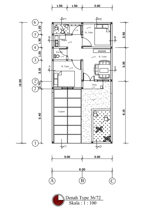
2 Kamar Tidur
1 Kamar Mandi
Luas Bangunan:
60 m²
60 m²
Luas Tanah:
72 m²
72 m²
Tipe Properti:
Rumah
Rumah
Garasi:
1 Mobil
1 Mobil
Material Bangunan
Pondasi:
Batu Kali
Lantai:
Granit
Dinding:
Double Heble Plester,
Aci dan di Cat
Aci dan di Cat
Rangka Atap:
Baja Ringan
Penutup Atap:
Genteng Flat
Kusen:
Alumunium
Pintu:
Panel
Plafon:
GRC
Sanitari:
Closet duduk & Shower
Listrik:
1300 Wat
Denah
Side Plan
Pengembang
PT. Sinar Dinamika Karya
Pemasaran
Kp. Telar Rt. 002/001 Desa Muktiwari Kec. Cibitung - Bekasi
Telepon 1
+62 813.1083.4962 (Marketing)
WhatsApp 1
+62 813.1083.4962 (Marketing)
Email
andarahillsofficial@gmail.com
Bagaimana Kami Dapat Membantu Anda!
Kami hadir untuk memudahkan Anda memiliki rumah impian. Dapatkan layanan terbaik mulai dari konsultasi, pemilihan unit, hingga proses pembelian yang mudah dan transparan.